Порой архитектурная задумка оказывается настолько креативной, что адекватное объяснение этому найти весьма трудно. Пожалуй, под эту категорию подходят и так называемые дома-гвозди. Феномен этих сооружений состоит в том, что их ширина едва ли превышает пару-тройку метров. Конечно, нередко и причины создания таких необычных домов нетривиальны.
Вашему вниманию «четвёрка» самых узких домов, которые только можно найти на планете.
1. Самый узкий дом в Бразилии

Бразилия широко известна собственным «дом-гвоздь», ширина которого оказалась всего один метр. При этом высота его составляет целых десять метров. На трех этажах сооружения расположились кухня, целых три спальни, гостиная и даже веранда. По сути, кроме узких проходов, этот дом ничем не отличается от других. Интересно, что дом стоит много лет, а споры вокруг него не стихают на официальном уровне. Еще когда здание начали строить, местные власти первоначально были против того, чтобы оно вообще появилось. Однако в итоге разрешение все-таки было получено. Правда, к общему решению власти так и не пришли, и обсуждение законности такой постройки продолжается. А дом по-прежнему стоит, и сносить его пока никто не собирается.
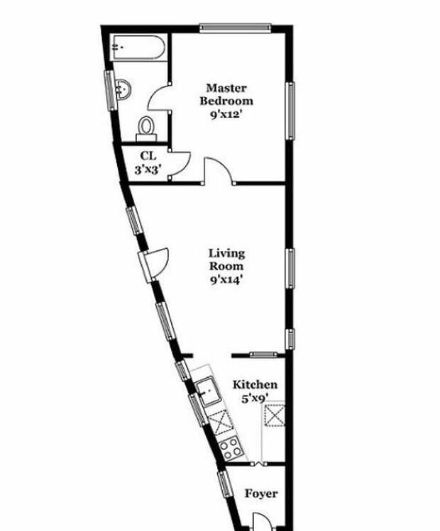
2. Дом в Сиэтле

История этого уникального клиновидного дома началась практически девяносто пять лет назад. Точных сведений касаемо причины возведения такого не осталось, а вот городская легенда гласит, что как-то владелец попытался продать свой небольшой участок, однако соседи отказались. Тогда-то им назло и был возведен этот домик.

План самого узкого дома в Сиэтле. /Фото: piximus.net Строительство самого маленького в Сиэтле дома было завершено в 1925 году. В результате хозяин участка возвел здание с передней частью фасада шириной четыре с половиной метра, а задняя часть - меньше полутора метров. При этом внутренняя планировка дома вместила несколько комнат, кухню, туалет и все, что необходимо для полноценного проживания там.
3. Дом Ричардсона - самый узкий в Нью-Йорке

Нью-Йорке также может похвастаться поразительно узким домом. Речь идет о несуществующем ныне здании на на 82-й улице Лексингтона, построенном Джозефом Ричардсоном. Он владел небольшим участком земли между домами, и покупать его никто не хотел, поэтому, опять-таки назло соседям, Ричардсон построил там полноценное здание. Строительство было окончено в 1882 году.

Чертеж в разрезе самого узкого дома в Нью-Йорке. /Фото: plover.com Дом Ричардсона представлял собой здание длиной около одиннадцати, а шириной - примерно полтора метра. Всего на такой площади вместилось восемь комнат. Вот только нью-йоркцы подобную экзотику не оценили: за все время существования дома они так и не был заселен, да и сам владелец скончался в 1897 году. Поэтому судьба уникального здания оказалась незавидной: его попросту снесли еще в 1915 году.
4. Узкий дом в Зальцбурге

В отличие от предыдущих историй, самый узкий дом Зальцбурга появился при весьма романтических обстоятельствах. Городская легенда гласит, что местный парень был сильно влюблен в одну девушку. Однако та заявила, что согласится на его предложение выйти замуж только в том случае, если юноша сможет обзавестись собственным домом.

Вот только молодой австриец был беден, и возможности приобрести хоть какое-нибудь жилье у него попросту не было. Однако сдаваться влюбленный не собирался: он решил отстроить себе жилье непосредственно между двумя другими домами. И, несмотря на поразительно малое количество места, ему удалась эта задумка. Так, история этой любви была запечатлена в городском
источник
Если вам понравился пост, пожалуйста, поделитесь им со своими друзьями:

И не забудьте:
Подписаться на мой Instagram
Свежие комментарии